{{ 'fb_in_app_browser_popup.desc' | translate }} {{ 'fb_in_app_browser_popup.copy_link' | translate }}

{{ 'in_app_browser_popup.desc' | translate }}

你的購物車是空的
{{ (item.variation.media ? item.variation.media.alt_translations : item.product.cover_media.alt_translations) | translateModel }} {{ (item.variation.media
                    ? item.variation.media.alt_translations
                    : item.product.cover_media.alt_translations) | translateModel
                }}
{{ 'product.bundled_products.label' | translate }}
{{ 'product.bundle_group_products.label' | translate }}
{{ 'product.buyandget.label' | translate }}
{{ 'product.gift.label' | translate }}
{{ 'product.addon_products.label' | translate }}
{{item.product.title_translations|translateModel}}
{{ field.name_translations | translateModel }}
  • {{ childProduct.title_translations | translateModel }}

    {{ getChildVariationShorthand(childProduct.child_variation) }}

{{ 'product.set.open_variation' | translate }}
  • {{ getSelectedItemDetail(selectedChildProduct, item).childProductName }} x {{ selectedChildProduct.quantity || 1 }}

    {{ getSelectedItemDetail(selectedChildProduct, item).childVariationName }}

{{item.variation.name}}
{{item.quantity}}x NT$0 {{ item.unit_point }} 點
{{addonItem.product.cover_media.alt_translations | translateModel}}
{{ 'product.addon_products.label' | translate }}
{{addonItem.product.title_translations|translateModel}}
{{addonItem.quantity}}x {{ mainConfig.merchantData.base_currency.alternate_symbol + "0" }}

四季之間,隨光流動的家 | 沐慕室內裝修設計《Wonderful Season》

2025 年 iF 設計獎室內設計領域獲獎作品 「Wonderful Season

- 沐慕室內裝修設計有限公司 設計總監 董家豪 -

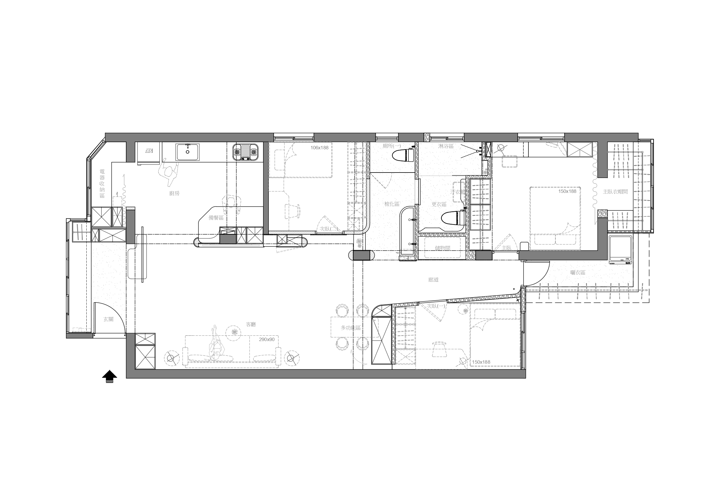
在台灣的住宅結構中,許多老屋延續著「平均分配式」的空間邏輯——每個房間大小雷同,客廳與臥室幾乎無異,忽略了空間使用的優先順序與生活節奏的差異。對沐慕設計團隊而言,這樣的格局恰恰是翻修設計的契機。設計不只是美化表層,更是一場對生活方式的重新提問。

在2025年 iF 設計獎室內設計項目獲獎作品「 Wonderful Season 」中,沐慕設計團隊透過對舊屋格局的精準重構,在不破壞結構安全的前提下,針對舊有建築的「空間分配」進行調整與再組織。那些過於狹長、低矮或採光不足的空間被重新審視、打開、重塑,讓光線重新進入,讓空間流動,讓家不再只是空間的堆疊,而是一處有呼吸、有情感、有溫度的生活場域。

沐慕室內裝修設計有限公司

沐慕室內裝修設計成立以來,始終以「感受生活,一起美好生活」作為設計核心,以溫潤且充滿詩意的設計語言,為空間注入生活的節奏,創造能乘載記憶、情感與日常流動的生活場域。由設計總監 董家豪領軍的團隊,擅長以細膩的材質語彙與空間節奏,為每一位居住者量身梳理家的樣子。

2025 年 iF 設計獎室內設計領域獲獎作品 − Wonderful Season

這是一間為新婚夫妻打造的住宅,基地位於桃園,原為一棟端戶老屋。雖擁有三面採光的優勢,卻因格局規劃不良,導致空間未能被有效利用,內部光線受阻,使整體居住氛圍稍顯侷限,缺乏開放感與互動性。

沐慕設計團隊透過格局重組,將廚房平移至與客廳平行的位置,以開放式格局重組核心公共空間,讓日光自然流動於客廳、餐廳與走廊之間。廊道開口以引導線構圖設計,優化動線之餘,也在視覺上串聯場域,營造空間的連續與流動。整體空間以米色與大地色調為主,搭配木質與織品等溫潤材質,讓住宅呈現如同四季遞嬗般的層次與安定感,也讓家的重心,回到日常交流與共享的所在。

這不只是一次空間的更新,更是一種時間的呈現。「 Wonderful Season 」透過光影、比例與生活節奏的細緻構成,讓日常與記憶交疊流動,成為一座安放歲月的居所。

>> 更多資訊

生活從玄關踏入,空間隨即展開

在入口處,原本的落地窗改為與室內相同色調的地板鋪設,營造出一致且延伸的空間感。輕盈的玻璃屏風與鞋櫃相連,不僅具備實用機能,也巧妙阻隔直接的視線穿透,在引導動線的同時,也保留了玄關應有的靜謐與界線感。這個轉場設計,像是一道深呼吸的緩衝,讓生活得以從容展開。

廊道引路,生活有了流動的路徑

沐慕設計團隊援用攝影中的引導線構圖,將廊道開口延伸並放寬至130公分,特別針對浴廁端這個多動線交會處,透過視覺引導讓動線不再擁擠,視線也能自然穿越餐廳側牆與轉角,直至空間的最深處。自然牽引出室內空間的連貫性,讓視線、動線在空間中緩緩過渡。整體色調選擇柔和的大地色作為基底,構築出中性而沉穩的氛圍,讓空間回歸生活本質,陪伴這對新婚夫妻走進生活的下一篇章。

在這裡,光線不只是照明,而是一種陪伴,一種慢下來的生活節奏。

在光線裡備餐,日常的開放式對話

半開放式廚房引入充沛自然光,讓整體氛圍明亮而開放。將電器櫃移至前陽台,讓烹飪時的動線更為分流,避免互相干擾。電視牆水平延伸,成為備餐區的一部分,同時提供充裕的收納空間,兼顧機能與整體感。

一張會轉動的桌子,讓家的形狀可以改變

餐廳設置旋轉桌,取代傳統固定式餐桌,設計團隊希望這個場域可以在用餐、聚會、親子陪伴、麻將遊戲與日常留白之間,靈活轉換,陪伴屋主度過不同的生活階段。

旋轉桌的機能設計,讓空間不再是靜態的規劃,而是一個能隨家庭型態與生活習慣變化、逐步生成的彈性場域。無論是兩人的午茶時光,或是多人的假日聚會,這張餐桌都能順應生活節奏,自然展開。

在細節裡,留一點生活的趣味

因應屋主使用習慣,特別增設半套廁所,並巧妙使用漸層玻璃作為隔間設計。下方保留如廁時所需的隱私,上方則讓線條持續延伸,營造更寬敞的視覺感受,也引入側牆的自然採光,使光線能自由穿梭於空間之中。

浴室拉門不以傳統制式門斗做法,改以細節設計藏入生活日常,讓日常使用時也能發現其中的趣味與溫度。設計團隊希望,這些不起眼的小巧思,能在生活的片刻裡被緩緩發現。

 

延伸觀點:翻新舊屋,是生活觀的重組

「我們始終認為,臥室和客餐廳一樣大,是一件非常弔詭的事。」沐慕設計團隊在多年的老屋翻修經驗中,累積出一套獨特的空間觀。他們相信,空間應隨人而變,反映居者的生活型態與互動需求,而不是僵化地遵循建商制式分配。

每一次的格局調整,背後都是一次使用習慣與生活方式的重新思考。與其平均分配空間,不如讓使用頻率最高、最能聚集人的公共空間成為家的重心。同時,對於結構的尊重與對環境的理解,也使沐慕的設計總能在安全、機能、美感之間取得平衡。

在「Wonderful Season」中,他們將這套理念落實得淋漓盡致。設計不只是「把房子變漂亮」,而是讓空間開始對話,對話記憶,對話家人,也對話生活本身。讓設計回到生活,讓生活成為設計的答案。

專訪 - 沐慕室內裝修有限公司 設計總監 董家豪

iF:恭喜沐慕設計團隊榮獲2025年iF 設計獎!請您為大家介紹一下您以及團隊。

iAN:設計,是我們對生活的回應。

我們相信,每個空間都應該承載獨特的故事。傾聽、理解空間與人的關係,將機能與美感結合。我們深信,空間不僅承載生活,更應成為情感交流與美好體驗的容器。

從一紙藍圖到落地實景,我們用感受量身創造更多能夠陪伴生活、貼近居住者心靈的空間,讓設計真正回歸生活的本質。

iF當初接觸「Wonderful Season」這個案子時,您對這間老屋的第一印象是什麼?有哪些設計元素或執行環節是最讓你印象深刻的?

iAN:這個空間雖然三面都沒有高樓遮蔽,卻因長屋而帶有狹長、幽暗的感覺,讓人感到相當可惜。希望透過格局調整來改善採光的同時,發現有一支柱子矗立在房屋中心,怎麼調整都很突兀。

當時我默默和那支柱子說:「既然你愛表現,那就讓你表現吧!」,反而這支柱子就成了這個空間的特色。^^

iF在這次獲獎作品經驗中,你們希望未來在老屋翻修上實驗哪些新的可能性?對於台灣舊屋翻修,您認為設計師最需要意識到的挑戰是什麼?

iAN:我們未來會希望能將老屋視為一個有機體,一個能跟我們一起成長、變化的存在。保留空間中的記憶痕跡,也保留未來彈性調整的可能性。

許多屋主並未意識到,舊屋翻新其實正是一個重新檢視生活的契機,設計師應該要更大膽提出適切的規劃,幫助屋主看見這些可能性。即便過程中可能會面臨屋主對於改變的抗拒,但我認為這正是室內設計師的責任,也是未來AI無法取代的價值所在。設計不能只侷限於美感的提供。

iF在許多老屋都面臨格局平均、動線混亂等問題時,您認為「重整空間分配」對生活品質的影響有多大?您如何看待台灣舊有住宅「臥室與客餐廳等大」這種空間配置邏輯?

iAN:建商蓋房時,通常沒有特定的銷售對象,從商業邏輯來看,空間等大是建商最安全的配置方式。不過現在也越來越多建商願意提供「客變」服務,讓屋主擁有選擇格局的權利。

屋主在購屋時,會選擇地域、選擇機能、選擇適合自己的房子,應該也要有選擇適合自己格局的認知,不是只單純想著「生命自然會找到出路,住進去再說」。

每個人或家庭都是獨一無二的個體,沒有人的生活習慣與需求會完全相同。舊屋翻新正是一個重新檢視與選擇的機會,讓「我的家」能真正住得更有感覺。

iF:透過您多年的從業經驗,是否觀察到台灣住宅室內設計上的風格轉變?您認為未來的設計趨勢會有如何變化?

iAN:室內設計的核心一直以來都是以人為本,這不只是我們提出的理念,相信很多同業也都秉持這樣的初心,只是我們願意花更多努力和時間,深入與屋主溝通這件事。

從早期屋主只在乎風格上的呈現,到現在給我們的回饋已經不再只是「多好看」,而是「多好用、多方便」。屋主也慢慢理解,設計主要目的不只是美化,而是如何透過設計貼近生活、深入人心。

我相信,透過大家的努力,未來的設計會越來越簡單,卻也會更真實地反映居住者的生活本質。

iF最後,如果要用一句話來形容你們做舊屋翻新的設計初衷,您會怎麼說?

iAN:感受生活,一起美好生活!

不管舊屋翻新或新成屋,都是一樣的。

iF:感謝您的耐心回答,謝謝!

 

聯絡沐慕室內裝修設計有限公司
hello@immerse-design.com
 

文  沐慕室內裝修設計有限公司、藝符設計
  沐慕室內裝修設計有限公司